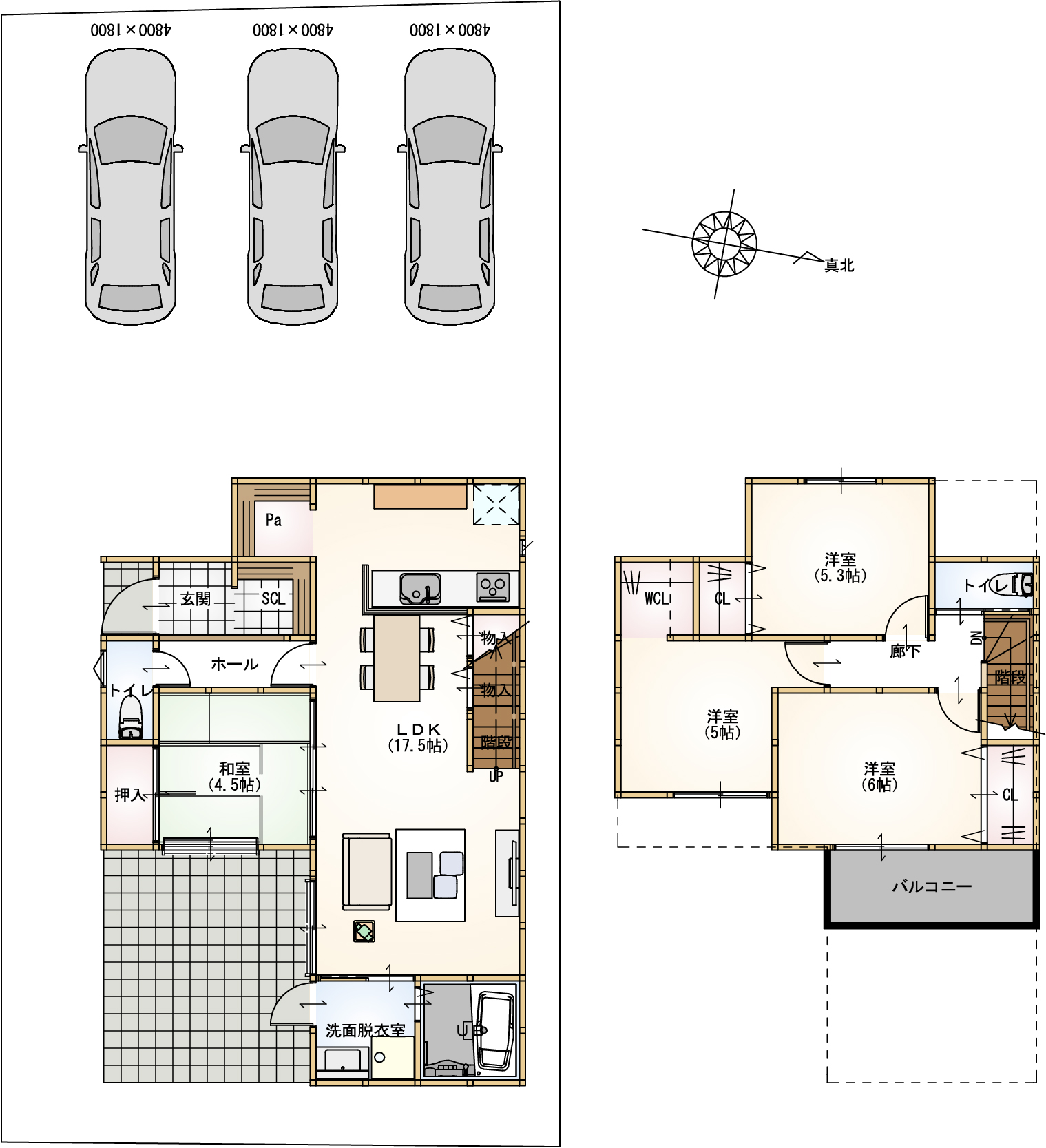
トップページ 最新物件情報 セルファ泉南信達市場 【全8区画】 © SAKURA HOME ALL RIGHTS RESERVED. ■おすすめ物件を見る 建築条件付宅地 和泉市 セルファ和泉葛の葉町 新築分譲 建築条件付宅地 泉大津市 セルファ泉大津高津町 新築分譲 建築条件付宅地 堺市中区 セルファ堺八田西町2丁 新築分譲 中古戸建て・マンション 堺市西区 堺市西区山田1丁 【中古戸建】 セルファ泉南信達市場 【全8区画】 563万円~1163万円 建築条件付宅地 泉南市 土地建物合計参考価格2180万円(税込)~2780万円(税込) POINT 【自由設計】 当社設計士と一緒にお家の間取を考えられるので、「あーしたい」「こーしたい」を実現できる! ※間取は参考間取であり、追加オプションが含まれます。詳しくは担当者までお問合せ下さい。 ■物件資料をお求めの方は下記よりダウンロードください。 資料をダウンロード ■物件についてのお問い合わせはこちら。 お問い合わせ ご来場予約 ■交通アクセス 泉南市信達市場2665−1付近 CONTACT 住まい探しについてはさくらホームへ。お気軽にお問い合わせください。 お問い合わせ ご来場予約